Emmeloord – Maisonette fase 1 39

€ 350.000,-

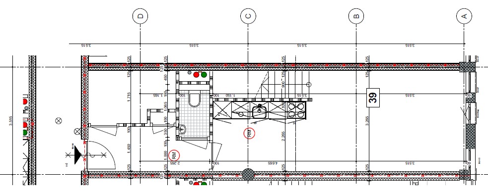
Op de tweede verdieping bevindt deze compacte en moderne maisonnette, dit is wonen in een appartementencomplex, maar toch genieten van twee volledige verdiepingen. Hier gaat de originele uitstraling moeiteloos samen met hedendaagse afwerking. Bij binnenkomst stap je de hal binnen, die toegang geeft tot de woonkamer, het separaat toilet en de technische ruimte.

Bouwjaar2026
Woonoppervlakte63 m2
EnergielabelA+++
Slaapkamers1
Foto’s 3 Plattegronden 2

Omschrijving

Op de tweede verdieping bevindt deze compacte en moderne maisonnette, dit is wonen in een appartementencomplex, maar toch genieten van twee volledige verdiepingen. Hier gaat de originele uitstraling moeiteloos samen met hedendaagse afwerking. Bij binnenkomst stap je de hal binnen, die toegang geeft tot de woonkamer, het separaat toilet en de technische ruimte.

De woonkamer heeft maar liefst een hoogte van 5 meter! Dat is nog eens verrassend binnenkomen. Hierdoor is het een fijne en lichte ruimte. De open keuken heeft een praktische plek in de ruimte gekregen, waardoor er voldoende ruimte overblijft voor een eethoek en zithoek. De keuken kun je bovendien geheel naar eigen wens samenstellen bij een geselecteerde leverancier.

Via de trap krijg je toegang tot een slaapkamer van circa 13,5 m² tot 15,5 m², en volledig uitgeruste badkamer, voorzien van wastafel en douche.

In de technische ruimte is er voldoende plek voor je wasmachine en droger. En dit appartement beschikt in de kelder over een berging. Parkeren kan in de gemeenschappelijk afgesloten parkeerkelder.

De wanden zijn glad afgewerkt en al netjes gesausd, waardoor er meteen een frisse, strakke basis ontstaat. Ook de vloer wordt al voor je gelegd, een hoogwaardige pvc-vloer met ruime keuze in kleur.

Een comfortabel en stijlvol appartement op een unieke, karaktervolle locatie.

Kenmerken

Bouw
Type objectAppartement
Soort bouwNieuwbouw
Bouwjaar2026
Type dakPlat dak
IsolatievormenVolledig geïsoleerd
Oppervlaktes en inhoud
Woonoppervlakte63 m2
Inhoud203 m3
Oppervlakte externe bergruimte0 m2
Indeling
Aantal kamers2
Aantal slaapkamers1
Locatie
LiggingIn centrum
Tuin
Heeft een achteromNee
Energieverbruik
EnergielabelA+++
CV ketel
CombiketelNee

Downloads

jpg

Emmeloord – Maisonette fase 1 39 – Plattegrond 2

Download
jpg

Emmeloord – Maisonette fase 1 39 – Plattegrond

Download

Andere bouwnummers

Beschikbaar

Emmeloord – Maisonette fase 1 40

€ 499.000,-

  • 114 m2
  • 1
Bekijk bouwnummer
Beschikbaar

Emmeloord – Maisonette fase 1 38

€ 420.000,-

  • 107 m2
  • 1
Bekijk bouwnummer
Beschikbaar

Emmeloord – Maisonette fase 1 37

€ 420.000,-

  • 99 m2
  • 1
Bekijk bouwnummer
Beschikbaar

Emmeloord – Maisonette fase 1 36

€ 420.000,-

  • 96 m2
  • 1
Bekijk bouwnummer