Emmeloord – Appartement fase 1 43

€ 280.000,-

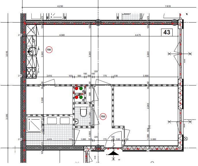
Op de tweede verdieping bevindt zich dit compacte en moderne appartement, waar de originele uitstraling moeiteloos samengaat met hedendaagse afwerking. Bij binnenkomst stap je de hal binnen, die toegang geeft tot de woonkamer, slaapkamer, badkamer en het separaat toilet.

Bouwjaar2026
Woonoppervlakte56 m2
EnergielabelA+++
Slaapkamers1
Foto’s 2 Plattegronden 1

Omschrijving

Op de tweede verdieping bevindt zich dit compacte en moderne appartement, waar de originele uitstraling moeiteloos samengaat met hedendaagse afwerking. Bij binnenkomst stap je de hal binnen, die toegang geeft tot de woonkamer, slaapkamer, badkamer en het separaat toilet.

De keuken heeft een praktische plek in de ruimte gekregen, waardoor er nog voldoende ruimte overblijft voor een comfortabele eethoek en zithoek. De keuken kun je bovendien geheel naar eigen wens samenstellen bij een geselecteerde leverancier. Vanuit de woonkamer heb je zicht op het levendige lichthof.

De slaapkamer heeft een oppervlakte van circa 10 m². De badkamer en het toilet zijn van elkaar gescheiden, wat zorgt voor extra gemak in het dagelijks gebruik. De badkamer is volledig uitgerust met dubbele wastafel en douche, en je hebt nog keuze in het tegelwerk.

In de technische ruimte is er voldoende plek voor je wasmachine en droger. En dit appartement beschikt in de kelder over een berging. Parkeren kan in de gemeenschappelijk afgesloten parkeerkelder.

De wanden zijn glad afgewerkt en al netjes gesausd, waardoor er meteen een frisse, strakke basis ontstaat. Ook de vloer wordt al voor je gelegd, een hoogwaardige pvc-vloer met ruime keuze in kleur.

Een comfortabel en stijlvol appartement op een unieke, karaktervolle locatie.

Kenmerken

Bouw
Type objectAppartement
Soort bouwNieuwbouw
Bouwjaar2026
Type dakPlat dak
IsolatievormenVolledig geïsoleerd
Oppervlaktes en inhoud
Woonoppervlakte56 m2
Inhoud157 m3
Oppervlakte externe bergruimte0 m2
Indeling
Aantal kamers2
Aantal slaapkamers1
Locatie
LiggingIn centrum
Tuin
Heeft een achteromNee
Energieverbruik
EnergielabelA+++
CV ketel
CombiketelNee

Downloads

jpg

Emmeloord – Appartement fase 1 43 – Plattegrond

Download

Andere bouwnummers

Onder optie

Emmeloord – Appartement fase 1 7

€ 360.000,-

  • 72 m2
  • 1
Bekijk bouwnummer
Onder optie

Emmeloord – Appartement fase 1 44

€ 290.000,-

  • 56 m2
  • 1
Bekijk bouwnummer
Beschikbaar

Emmeloord – Appartement fase 1 42

€ 475.000,-

  • 92 m2
  • 1
Bekijk bouwnummer
Beschikbaar

Emmeloord – Appartement fase 1 41

€ 420.000,-

  • 85 m2
  • 2
Bekijk bouwnummer
Onder optie

Emmeloord – Appartement fase 1 17

€ 285.000,-

  • 56 m2
  • 1
Bekijk bouwnummer
Onder optie

Emmeloord – Appartement fase 1 16

€ 275.000,-

  • 56 m2
  • 1
Bekijk bouwnummer
Beschikbaar

Emmeloord – Appartement fase 1 15

€ 480.000,-

  • 92 m2
  • 1
Bekijk bouwnummer
Onder optie

Emmeloord – Appartement fase 1 14

€ 460.000,-

  • 85 m2
  • 2
Bekijk bouwnummer
Onder optie

Emmeloord – Appartement fase 1 13

€ 410.000,-

  • 75 m2
  • 1
Bekijk bouwnummer
Beschikbaar

Emmeloord – Appartement fase 1 12

€ 479.000,-

  • 94 m2
  • 1
Bekijk bouwnummer
Beschikbaar

Emmeloord – Appartement fase 1 11

€ 495.000,-

  • 99 m2
  • 2
Bekijk bouwnummer
Beschikbaar

Emmeloord – Appartement fase 1 10

€ 399.000,-

  • 80 m2
  • 1
Bekijk bouwnummer
Beschikbaar

Emmeloord – Appartement fase 1 9

€ 399.000,-

  • 80 m2
  • 1
Bekijk bouwnummer
Beschikbaar

Emmeloord – Appartement fase 1 5

€ 395.000,-

  • 82 m2
  • 1
Bekijk bouwnummer
Onder optie

Emmeloord – Appartement fase 1 6

€ 340.000,-

  • 63 m2
  • 1
Bekijk bouwnummer
Onder optie

Emmeloord – Appartement fase 1 8

€ 270.000,-

  • 53 m2
Bekijk bouwnummer
Beschikbaar

Emmeloord – Appartement fase 1 4

€ 350.000,-

  • 75 m2
  • 1
Bekijk bouwnummer
Beschikbaar

Emmeloord – Appartement fase 1 3

€ 350.000,-

  • 75 m2
  • 1
Bekijk bouwnummer
Beschikbaar

Emmeloord – Appartement fase 1 1

€ 340.000,-

  • 79 m2
  • 1
Bekijk bouwnummer
Beschikbaar

Emmeloord – Appartement fase 1 2

€ 340.000,-

  • 79 m2
  • 1
Bekijk bouwnummer