Emmeloord – Appartement fase 1 7

€ 360.000,-

Op de eerste verdieping bevindt zich dit moderne appartement, waar de originele uitstraling moeiteloos samengaat met hedendaagse afwerking. Bij binnenkomst stap je de hal binnen, die toegang geeft tot alle ruimtes.

Bouwjaar2026
Woonoppervlakte72 m2
EnergielabelA+++
Slaapkamers1
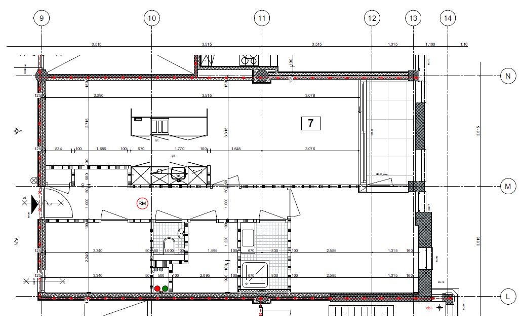
Foto’s 2 Plattegronden 1

Omschrijving

Op de eerste verdieping bevindt zich dit moderne appartement, waar de originele uitstraling moeiteloos samengaat met hedendaagse afwerking. Bij binnenkomst stap je de hal binnen, die toegang geeft tot alle ruimtes.

De woonkamer is ruim en de keuken heeft een centrale ligging in de ruimte, waardoor je altijd in contact staat met zowel de eethoek als de zithoek. De keuken kun je bovendien geheel naar eigen wens samenstellen bij een geselecteerde leverancier. De woonkamer geeft middels een schuifpui toegang tot de fijne buitenruimte. Een heerlijke plek om te genieten van frisse lucht, een kop koffie in de ochtend of een ontspannen moment na een lange dag.

De slaapkamer heeft een oppervlakte tussen de circa 11,5 en 14,5 m², en biedt niet alleen toegang tot de buitenruimte maar vormt ook een fijne, rustige plek om je terug te trekken. De badkamer en het toilet zijn van elkaar gescheiden, wat zorgt voor extra gemak in het dagelijks gebruik. De badkamer is volledig uitgerust met wastafel en douche, en je hebt nog keuze in het tegelwerk.

Daarnaast beschikt het appartement over een praktische inpandige berging, ideaal voor het opbergen van je voorraad of huishoudelijke spullen. In de technische ruimte is er voldoende plek voor je wasmachine en droger.

Dit appartement beschikt in de kelder over een berging. Parkeren kan in de gemeenschappelijk afgesloten parkeerkelder.

De wanden zijn glad afgewerkt en al netjes gesausd, waardoor er meteen een frisse, strakke basis ontstaat. Ook de vloer wordt al voor je gelegd, een hoogwaardige pvc-vloer met ruime keuze in kleur.

Een comfortabel en stijlvol appartement op een unieke, karaktervolle locatie.

Kenmerken

Bouw
Type objectAppartement
Soort bouwNieuwbouw
Bouwjaar2026
Type dakPlat dak
IsolatievormenVolledig geïsoleerd
Oppervlaktes en inhoud
Woonoppervlakte72 m2
Inhoud212 m3
Oppervlakte externe bergruimte0 m2
Indeling
Aantal kamers2
Aantal slaapkamers1
Locatie
LiggingIn centrum
Tuin
Heeft een achteromNee
Energieverbruik
EnergielabelA+++
CV ketel
CombiketelNee

Downloads

jpg

Emmeloord – Appartement fase 1 7 – Plattegrond

Download

Andere bouwnummers

Onder optie

Emmeloord – Appartement fase 1 44

€ 290.000,-

  • 56 m2
  • 1
Bekijk bouwnummer
Onder optie

Emmeloord – Appartement fase 1 43

€ 280.000,-

  • 56 m2
  • 1
Bekijk bouwnummer
Beschikbaar

Emmeloord – Appartement fase 1 42

€ 475.000,-

  • 92 m2
  • 1
Bekijk bouwnummer
Beschikbaar

Emmeloord – Appartement fase 1 41

€ 420.000,-

  • 85 m2
  • 2
Bekijk bouwnummer
Onder optie

Emmeloord – Appartement fase 1 17

€ 285.000,-

  • 56 m2
  • 1
Bekijk bouwnummer
Onder optie

Emmeloord – Appartement fase 1 16

€ 275.000,-

  • 56 m2
  • 1
Bekijk bouwnummer
Beschikbaar

Emmeloord – Appartement fase 1 15

€ 480.000,-

  • 92 m2
  • 1
Bekijk bouwnummer
Onder optie

Emmeloord – Appartement fase 1 14

€ 460.000,-

  • 85 m2
  • 2
Bekijk bouwnummer
Onder optie

Emmeloord – Appartement fase 1 13

€ 410.000,-

  • 75 m2
  • 1
Bekijk bouwnummer
Beschikbaar

Emmeloord – Appartement fase 1 12

€ 479.000,-

  • 94 m2
  • 1
Bekijk bouwnummer
Beschikbaar

Emmeloord – Appartement fase 1 11

€ 495.000,-

  • 99 m2
  • 2
Bekijk bouwnummer
Beschikbaar

Emmeloord – Appartement fase 1 10

€ 399.000,-

  • 80 m2
  • 1
Bekijk bouwnummer
Beschikbaar

Emmeloord – Appartement fase 1 9

€ 399.000,-

  • 80 m2
  • 1
Bekijk bouwnummer
Beschikbaar

Emmeloord – Appartement fase 1 5

€ 395.000,-

  • 82 m2
  • 1
Bekijk bouwnummer
Onder optie

Emmeloord – Appartement fase 1 6

€ 340.000,-

  • 63 m2
  • 1
Bekijk bouwnummer
Onder optie

Emmeloord – Appartement fase 1 8

€ 270.000,-

  • 53 m2
Bekijk bouwnummer
Beschikbaar

Emmeloord – Appartement fase 1 4

€ 350.000,-

  • 75 m2
  • 1
Bekijk bouwnummer
Beschikbaar

Emmeloord – Appartement fase 1 3

€ 350.000,-

  • 75 m2
  • 1
Bekijk bouwnummer
Beschikbaar

Emmeloord – Appartement fase 1 1

€ 340.000,-

  • 79 m2
  • 1
Bekijk bouwnummer
Beschikbaar

Emmeloord – Appartement fase 1 2

€ 340.000,-

  • 79 m2
  • 1
Bekijk bouwnummer